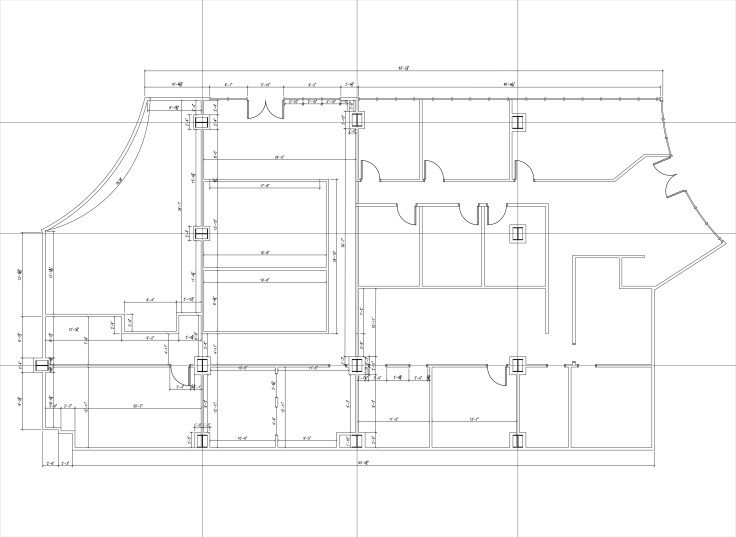
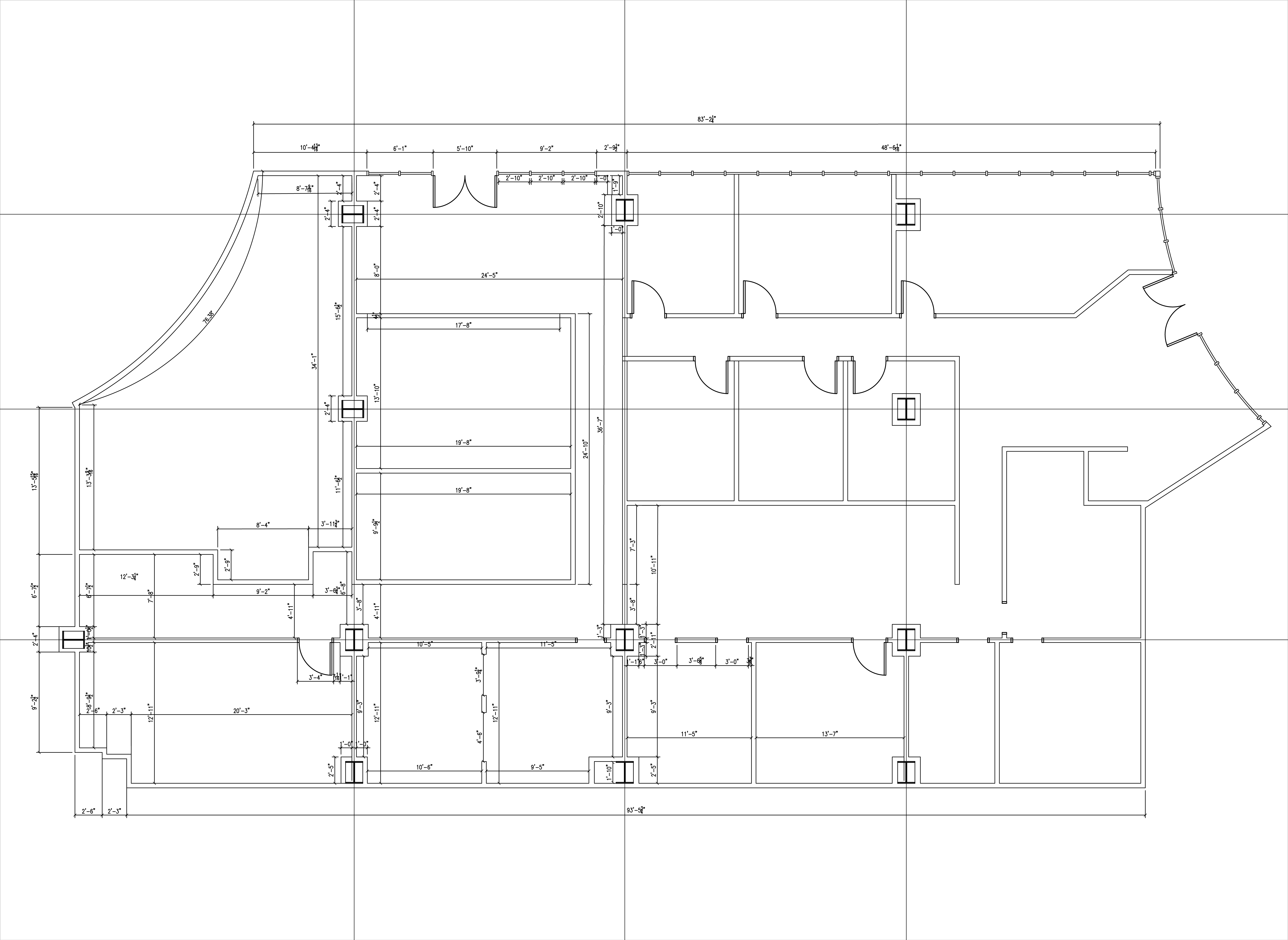
When blue-prints are too old and of little use, “as-built” site assessment is necessary to document an existing structure. A team mate at CAD Port Design and I took measurements and created 2D AutoCAD files for the hotel’s construction management company. The drawing files will be used to track the building’s life-cycle, manage renovations, and make changes as necessary in the future.




Leave a comment